幕別町では農業研修生の円滑な受入による研修の実施及び農業経営を行うにあたりより幅広い知識と技術の習得による安定的な経営体の育成を図り、本町農業を担う人材の育成を図る拠点施設として平成14年度に農業担い手支援センターを建設しました。
| 建物構造 | 鉄筋コンクリート造り2階建て | |
|---|---|---|
| 建物面積 | 研修棟1階 | 589.80u |
| 宿泊棟1階 | 222.00u | |
| 宿泊棟2階 | 237.00u | |
| 合計 | 1,048.80u | |


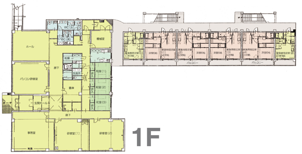
| 各室面積 | ||
|---|---|---|
| 研修棟 | 事務室 | 76.14u |
| 研修室1 | 51.75u | |
| 研修室2 | 51.75u | |
| パソコン研修室 | 56.94u | |
| 和室1 | 15.75u | |
| 和室2 | 15.75u | |
| 和室3 | 15.75u | |
| ホール | 52.26u | |
| 玄関・廊下 | 140.93u | |
| その他 | 112.78u | |
| 宿泊棟 | 家族用宿泊室(9室) | 378.00u |
| 単身者用宿泊室(3室) | 81.00u | |







